Back to page

Please Help Re-build Dad’s house

  • Update I love Dad

      16 June 2025
    Main image

    Dads house

    Finally get a roof up for him

    Thank you all for your donations

    I am so greatful for all of you who donate to funds Dad’s house

    Thank You

    Malo Aupito

      0 comments  |  Login to leave a comment
  • Thank You

      4 October 2024

    Builder is working on estimating the building . Thank you all for your kindness. All your help counts and much appreciate you all.

      0 comments  |  Login to leave a comment
  • Thank you !!!!

      26 September 2024
    Main image

    Thank you all for your support.

    Every penny counts. You sacrifice your needs and donate for this page, I am so thankful for your support.

      0 comments  |  Login to leave a comment
  • Building permit

      2 September 2024

    Building permit already done and happy to let you all my supporters know and thank you for sharing with us family.

    Also thank to the person who draw the house plan and get it permits. Now we are ready to build. 🙏🙏

      0 comments  |  Login to leave a comment
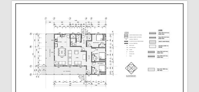
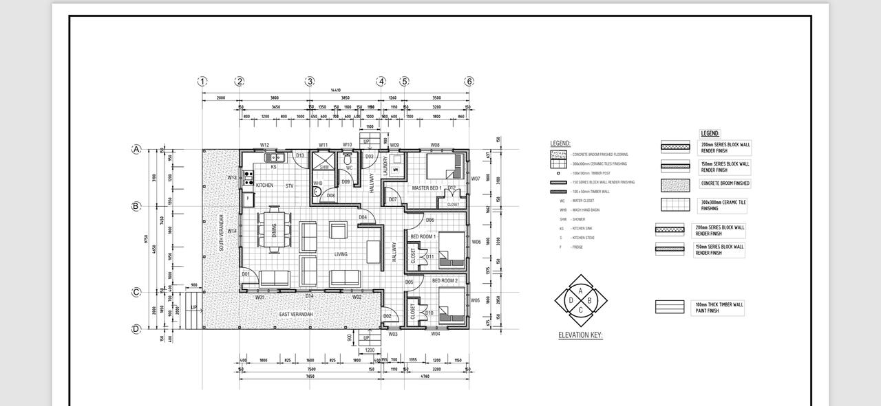
  • House plan- ready 🙏🙏🙏

      2 September 2024
    Main image

    Thank you for your support

    House plan done. An architect who support done a big job to draw a plan for Dad’s house

    Thank you for your kindly support and lending hands for Dad’s building.

      0 comments  |  Login to leave a comment
  • Work in progress

      30 July 2024
    Main image

    Thank you for your support in this difficult time for our family.

    Dad keep on knocking down bricks by axes 🪓 and he is very determined to start.

    House plan is still processing by an architect resides in Tonga and he will also permit the building. Once we got the permit, will start lay the foundation.

    Thank you all for your support and your ability to support in every ways.

    Malo Aupito

      0 comments  |  Login to leave a comment
  • Thank you 🙏

      22 July 2024
    Main image

    Thank you for all your support

    Much appreciated and thanks for all your encouragement.

      0 comments  |  Login to leave a comment
  • Tidy up bits and pieces

      14 July 2024
    Main image

    This is after tidy up dad’s house, still a lots to do. But will get there and Dad is working hard to tidy up almost every day.

    Thank you again for your support

      0 comments  |  Login to leave a comment
  • Thank you 🙏

      11 July 2024
    Main image

    Thank you so much for your donation so far.

    It means a lot to Dad and our family.

      0 comments  |  Login to leave a comment