Building a Better Shelter

$17,115 of $510,000 goal
Given by 126 generous donors in around 9 months

Building a better Dunedin Night Shelter to ensure the safety and comfort of all Dunedin's homeless.

Dunedin, Otago

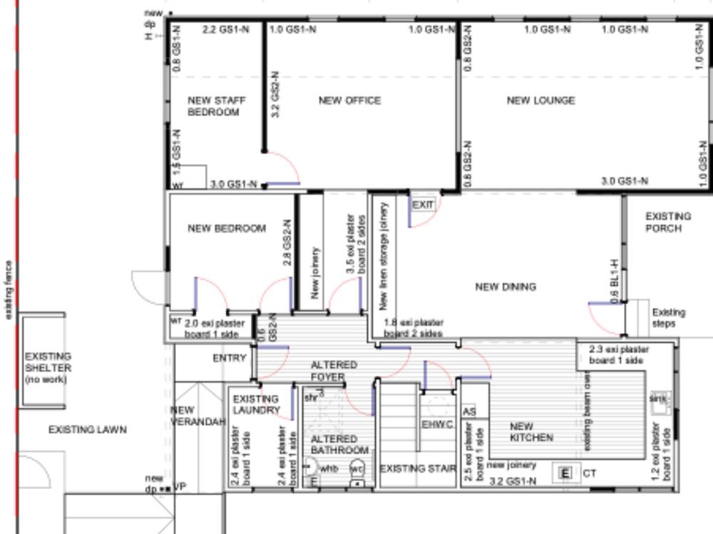
The redevelopment of the Dunedin Night Shelter building began with a realisation that the building had some deficiencies when challenged with the current homelessness situation. Currently, the living spaces are small and cramped, there is no accessible guest bedroom or bathroom, the staff work AND sleep in a small bedroom/office space and, as we discovered, our fire safety measures are not up to modern standards.

Dunedin architect Gary Todd generously agreed to work with us in designing an extended ground floor that addresses these concerns and has given many hours in negotiating with council to ensure that the design will be one that is welcoming and safe for all our guests and staff and is ready to serve those most in need in our community. The design includes larger kitchen, dining and living spaces, an accessible guest bedroom and bathroom, a separate staff bedroom and professional office space and a sprinkler system throughout ensuring the safety of all.

Stage One of the design required the demolition of our ancient leaking garage - a valuable storage space. A bequest has enabled us to build a new garage in our driveway, as well as pay for all necessary planning and consent processes.

Due to the current fire standards we are turning away homeless people because we can't run at full capacity. The quote for the redevelopment leaves us with $590,000 to raise - so far grants have provided $80,000. We need everyone's help to make this necessary redevelopment happen!

About us

The Dunedin Night Shelter Trust runs Dunedin's only night shelter. Started in 2007 as a men's shelter, demand from the community has seen it evolve into a facility supporting anyone in need of short-term emergency housing with a hot meal and a warm bed

Use of funds

All funds will be spent on the redevelopment of the Dunedin Night Shelter. The sprinkler system needs to be installed to ensure safety of all, and bring our capacity up to full again. If our main goal is not reached this work will be undertaken regardless.

Read more
2% Effective Fee
On average, fundraisers pay just 2% to use Givealittle. This is one of the lowest effective fees in New Zealand fundraising. We charge a 5% platform fee to cover the cost of running the platform. Because most donors choose to top up their donation to cover this fee, the effective cost paid by fundraisers is about 2%. That means around 98 cents of every dollar raised goes to the cause. Learn More

Latest donations

Isaac
Isaac on 01 Jun 2024
$5
Janice
Janice on 13 Mar 2024
$100
Guest Donor
Guest Donor on 05 Mar 2024
$100
Sally
Sally on 15 Jan 2024
$400
Robyn
Robyn on 30 Dec 2023
$100

Who's involved?

Dunedin Night Shelter's avatar
Created by, and paying to a verified bank account of, Dunedin Night Shelter (Charity)
Registered Charity
A Registered Charity has legal recognition under the Charities Act 2005.
Tax credit
Donations of over $5 are eligible for a New Zealand charitable giving tax credit.
Page Moderated
The page has been checked by our team to make sure it complies with our terms and conditions.

Any concerns?

Report this page
This campaign started on 24 Sep 2023 and ended on 30 Jun 2024.